About Us
Projects
Contact
FCH STUDIO | interior design
About Us
Projects
Contact
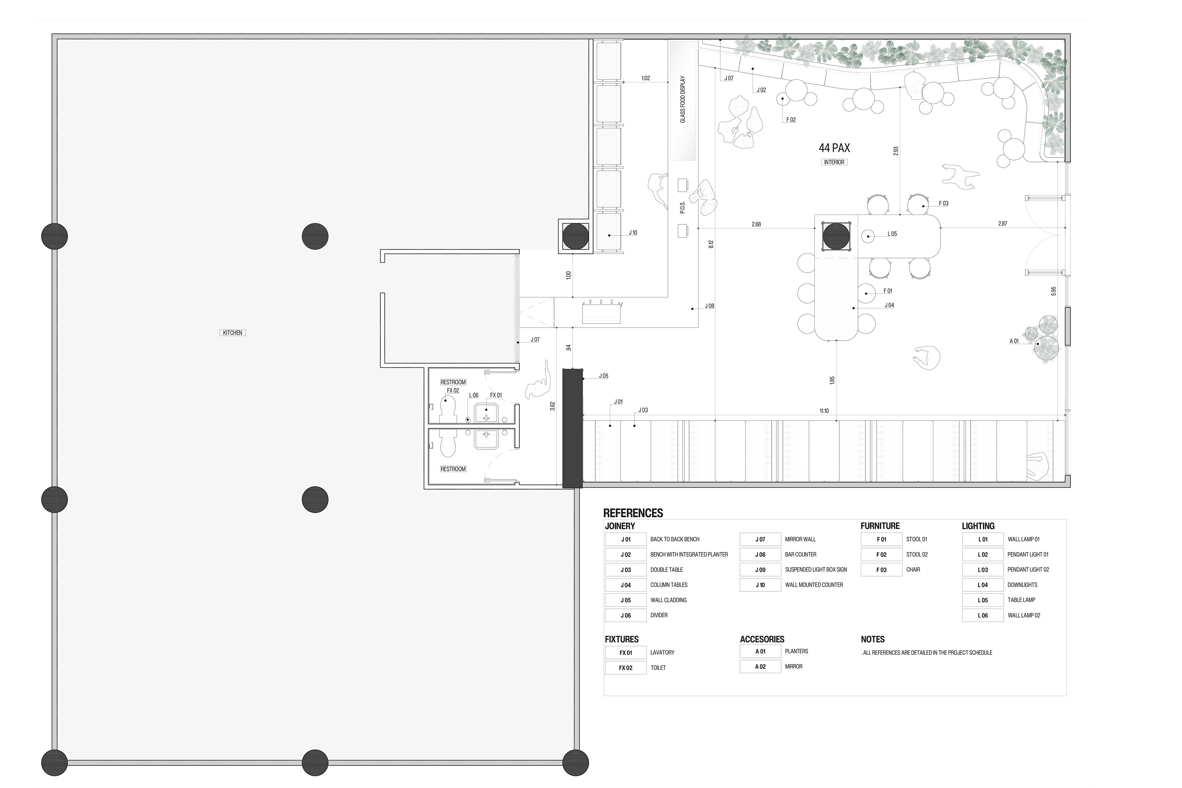
Millard | Bakery
Riyadh, Saudi Arabia. 2025
↑
Back to Top